简体中文
当前位置: 首页 > 智能装备 > 干燥设备 > 喷雾干燥机

LPG型离心喷雾干燥机

瞬间干燥,铸就均匀粉体品质
联系我们 获取报价
  • 产品详情
  • 产品技术
  • 技术参数
  • 应用案例

    离心喷雾干燥机 设备概述

       喷雾干燥机是将原料液用雾化器分散成雾滴,并利用热空气(或其他气体)与雾滴直接接触的方式而获得粉状产品的一种干燥过程。原料液可以是溶液、乳浊液或悬浮液,也可以是熔融液或膏状物。干燥产品可根据需要,制成粉状、颗粒状、空心球或团粒状。
       离心喷雾干燥机为热风循环、并流式、离心式雾化干燥机。干燥介质空气通过初、中效空气过滤器过滤,由加热器加热后,进入干燥器顶部空气分配器,热空气呈螺旋状均匀地进入干燥室。液体物料经过料液泵,输送到塔体顶部的高速离心雾化器,在离心力作用下喷雾成极细微的雾状液滴,与热空气并流接触,在极短的时间内可干燥为成品。成品连续被干燥塔底部和旋风分离器收集,尾气除尘后由引风机排空。


    离心喷雾干燥机 工作原理

       离心喷雾干燥机主要是物料通过高速旋转的雾化器的离心力将物料分配成雾滴状,与通过蜗壳热风分配器的热风相接触后瞬间干燥。由于料液在高速转盘(线速度在110m/s以上)中受离心力作用从盘边缘甩出而雾化,料液雾化的直径比较大,因此干燥塔需要较大的直径。同时由于物料是被离心力甩出来,雾滴的相对大小比较均匀,雾滴与热风接触的瞬间被干燥,雾滴干燥成基本都是空心粉体,物料的颗粒度比较均匀,但物料的颗粒度相对较小。
       离心喷雾干燥器在工业上应用很广,如化工、食品、医药等行业。就喷雾干燥的物料来说,处理的各种原料在性质上有很大的差别,获得的各种产品也各有其特殊的要求。因此,不仅在工艺过程上各有其特殊性,而且在流程安排、设备结构、操作条件,甚至在附属装置上也各有其特殊性。

       产品分离和回收装置有不同的选择:比如旋风分离器(普通型和多种组合型)、布袋过滤器、旋风分离器+布袋过滤器、旋风分离器+湿法除尘器、布袋过滤器+湿法除尘器等。我们可以根据不同产品的特性和客户的要求,提供不同的回收装置。根据产品特性和要求的不同,喷雾干燥之后,可以配备二次干燥系统(比如ZLG振动流化床或者气流输送)、除湿系统,配料系统,或者粉体筛分系统等。


    离心喷雾干燥机 设备特点

       龙鑫干燥博采众长,根据多年的经验和技术创新,持续优化离心喷雾干燥机,并申请了多项实用新型专li(ZL 202122093525.2、ZL 202321448173.0等),设备覆盖国内市场,且远销国外。客户在使用我公司设备的过程中发现,生产出的成品含水量、颜色、香味、粒度、溶解性和比重等重要参数均达到了理想效果。
      (1)喷雾干燥速度快,料液经雾化后,表面积大大增加,在与热风接触过程中,瞬间就可蒸发95%~98%的水份,干燥时间仅需数秒钟,特别适用于热敏性物料的干燥。
      (2)由于干燥是在热空气中完成的,产品基本上保持与液滴相近似的球状,具有良好的分散性,流动性和溶解性。操作简单稳定,调节控制方便,容易实现自动化作业。
      (3)喷雾干燥机生产过程简化,操作控制方便。对于湿含量40~60%(特殊物料可达90%)的液体能一次干燥成粉粒产品,干燥后不需粉碎和筛选,减少生产工序,提高产品纯度,操作环境卫生条件优越,能避免干燥过程中的粉尘飞扬。
      (4)对产品粒径、松密度、水份,在一定范围内可通过改变操作条件进行调整,控制和管理都很方便。
      (5)原料液可以是溶液,泥浆,乳浊液,悬浮液,糊状物或融熔物,甚至是滤饼等均可处理。

    离心喷雾干燥机 应用范围

       (1) 化学制品:聚合氯化铝、分散染料、活性染料、有机催化剂、白炭黑、洗衣粉、硫酸锌、二氧化硅、偏硅酸钠、氟化钾、碳酸钙、硫酸钾、无机催化剂、各种废液等。
       (2) 食品工业:全脂奶粉、胳朊、可可奶粉、代乳粉、蛋清(黄)等。燕麦、鸡汁、速溶茶、调味香料肉、蛋白质、 大豆、花生蛋白质、蛋白质水解物等。玉米浆、玉米淀粉、葡萄糖、果胶、麦芽糖、山梨酸钾、南瓜粉等。
       (3) 医药品:中药浸膏、药胶、酵母、维生素、抗生素、淀粉酶、脂肪酶等。
       (4) 塑料树脂:AB、ABS  乳液、脲醛树脂、酚醛树脂、密胶(脲)甲醛树脂、聚乙烯、聚氯乙烯等。
       (5) 洗涤剂:高级洗衣粉、普通洗衣粉、肥皂粉、苏打粉、乳化剂、增白剂、磷酸剂等。
       (6) 陶瓷:氧化铝、氧化锆、氧化镁、氧化钛、钛化镁、陶土、瓷土、各种铁氧体及金属氧化物等

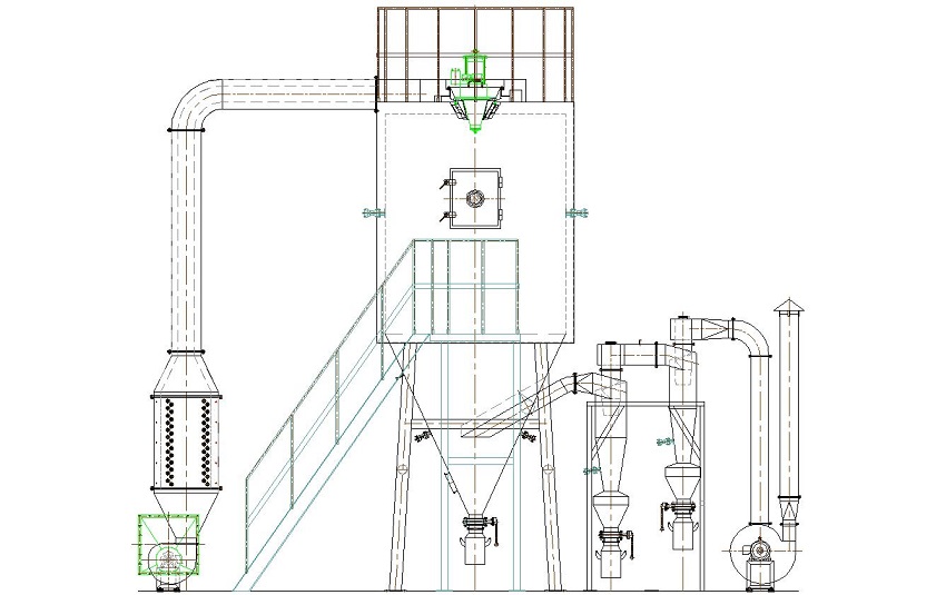
    离心喷雾干燥机 工艺流程图1——常规


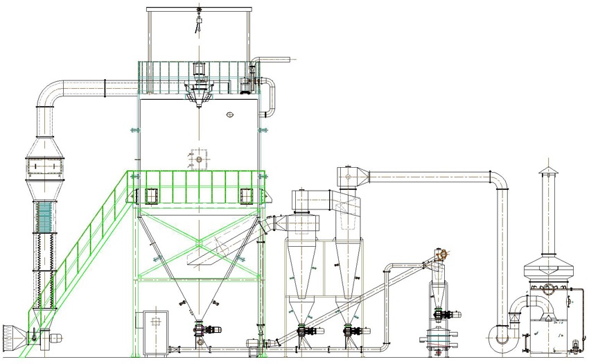
    离心喷雾干燥机 工艺流程图2——冷却输送+集中收料


    离心喷雾干燥机 工艺流程图3——冷壁+气扫+冷却输送+集中收料

    离心喷雾干燥机 技术参数

    型号/参数 LPG-5 LPG-25 LPG-50 LPG-100 LPG-150 LPG-200 LPG-500 LPG-800 LPG-1000 LPG-2000 LPG-3000 LPG-4500 LPG-6500
    入口温度(℃) 140-350自控
    出口温度(℃) 80-90
    喷雾形式 高速离心雾化器(机械传动或无级变频调速可供选择)
    水份蒸发(kg/h) 5 25 50 100 150 200 500 800 1000 200 3000 4500 6500
    雾化器转速 25000 18000 18000 18000 18000 15000-18000 13000-18000
    雾化盘直径(rpm) 60 120 150 180-210 根据工艺要求确定
    电加热^大功率(kw) 8 31.5 120 81 99
    干粉回收率(%) ≥95
    占地长度(m) 1.6 4 4.5 5.2 7 7.5 12.5 13.5 14.5
    占地宽度(m) 1.1 2.7 2.8 3.5 5.5 6 8 12 14 根据工艺流程.厂地条件及用户要求确定
    塔体高度(m) 1.75 4.5 5.5 6.7 7.2 8 10 11 15
    喷头吊装高度(m) -- 2.5 2.5 3.2 3.2 3.2 3.2 3.2 3.2
    注:水份蒸发量与物料的特性及热进风、出口温度相关。当出口温度为90℃,其水份蒸发曲线见上图(供选型参考),随着产品不断更新,有关参数变更,恕不预先通知。

    离心喷雾干燥机 订货须知

       (1) 液体物料名称、物性:含固量(或含水量)、粘度、表面张力、PH 值等。
       (2) 产品特性:干燥后粉量容量、允许残余含水量、粒度范围、允许zui高温度。
       (3) 特殊要求(如果有的话):比重范围、颜色、香味等
       (4) 产量、每天开班时间。
       (5) 可供应能源:蒸汽的压力、电、煤、油、天然气、液化气和其他各种可燃物。
       (6) 控制要求:进出风温度、供液系统、气锤等的控制方式,以及系统的控制方式
       (7) 收料要求:根据产品特性和环境要求选择旋风类型、布袋过滤器和湿法除尘器等方式。
       (8) 其他特殊要求,比如车间尺寸、高度限制和特殊的用电规格等
    备注:以上要求,客户可以根据实际情况提供一部分即可。其他要求,我们可以在做试验后,或者根据 经验和客户协商确定液体物料名称、物性:含固量(或含水量)、粘度、表面张力、PH 值等。

项目案例

相关产品

相关资讯

精密陶瓷纳米砂磨机+喷雾干燥塔产线交付 龙鑫智能技术实力再获MLCC配方粉行业认可

近日,龙鑫智能成功交付多套MLCC配方粉核心装备系统,包括棒销式纳米砂磨机、精密陶瓷粉造粒喷雾干燥机、离心气流多用型喷雾干燥塔…

钠新电池来袭,看龙鑫智能如何赋能钠离子电池材料产业

当下宁德时代推出的钠新动力电池以低成本、高安全性和资源丰富性优势,为新能源行业注入全新活力,被视为锂电技术的重要补充与替代…

常州市龙鑫智能装备股份有限公司
智能制造领域的国家专精特新重点小巨人企业,致力于为新能源、精细化工、食品医药、资源再生利用等行业客户提供研磨分散、干燥焙烧智能装备及自动化生产线整体解决方案,推动超细粉体工艺升级,助力先进材料客户实现工业4.0。
联系我们

客户服务

质量保证

联系我们

人才招聘

走进龙鑫

公司简介

企业文化

组织结构

企业资质

发展历程

企业风貌

制造能力

合作伙伴

实验中心

检验检测

智能装备

珠磨机

三辊研磨机

分散、搅拌机

蒸发器

干燥设备

实验中试装置

废旧电池回收

解决方案

先进材料

精细化工

食品医药

请问您需要哪些帮助?

业务热线:0519-88608368 / 88661998
手  机:188-0612-0158
联系我们 获取报价
关注我们
X

截屏,识别二维码

手机二维码:龙鑫智能

(点击复制龙鑫智能官网简称)

二维码已复制,请打开手机浏览器访问!
获取报价
*请输入想咨询的相关问题
*请输入您的公司名称
*请输入您的联系方式,方便与您联系
请输入留言内容*
Copyright 2025 常州市龙鑫智能装备股份有限公司 苏ICP备20003825号 版权声明 技术支持:江苏东网科技
Copyright 2025 龙鑫智能 版权声明